1. a. 問題點: 折彎后工件在折彎處變形.

b. 發生原因: 出現變形主要是由于折彎速度快,而手沒有跟上工件折彎變形的速度導致的.
c. 解決方法: 降低折彎速度,手扶工件與工件同時進行.
2. a. 問題點: 折彎較長的工件,會出現角度一頭大,一頭小.

b. 出現這種情況,一般有以下幾種情況造成:
(1). 材料厚度不一致,一端厚一端薄.
(2). 上模由于磨損,一端高度尺寸比另一端小.
(3). 中間塊不平衡,不在同一水平上.
c. 解決方法:
(1). 反饋給激光,讓其注意選料.
(2). 換刀模.
(3). 調整中間塊
3. a. 問題點: 在折彎Z折時,有時工件會變形.

b. 發生原因: 出現這種情況主要是由于C處為后定規定位,折彎B處時,工件折曲上升運動,撞在后定規上,被后定規擠住.折彎成型后,D處就被擠變形.
c. 解決方法: 采用后定規后拉功能.
4. a. 問題點: 折彎尺寸較小,不好定位,上模容易壓到后定規上.

b. 發生原因: 因為t=0.8,按下模選用原則,v=5×0.8=4mm.4v中心到邊的距離為3.5mm,而2.9mm內尺寸為2.9-0.8=2.1mm,折彎尺寸在v中心線到邊的距離之內,正裝是無法定位.采用下模反裝,上模將壓住后定規,正反裝都行不通,要想其它的方法. .
c. 解決方法:可以下模反裝.在后定規前加一個墊片(薄薄的),從而使后定規后退,避開上模(如圖b.)

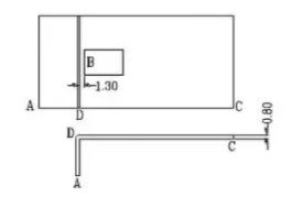
5. a. 問題點: 在板料的中間開有一方孔,方孔邊緣到折彎線的尺寸很近,如果直接折彎,方孔邊緣到折彎線處的料將折不起來.

b. 原因分折: 由于B處的尺寸只有1.3mm,料厚為0.8mm,選用的v寬為4v. 由于1.3mm<4v/2,所以折不起來.
c. 解決方法:
(1). 將此處料磨平至折彎線處.
(2). 將折彎線處先壓線,然后再折彎.
6. a. 問題點: 工件上有孔,孔到折彎線處的距離很近,直接折起,孔將會變形. 如圖:

b. 解決方法:
(1). 在折彎線處打壓線,再折彎起來.(如圖a.)
(2). 采用激光在折彎線處割線,從而避免拉料.(圖b.)
(3). 若生產量不多而又要求美觀,應采取LASER先割小孔,再進行折彎,最后擴孔的辦法.